緑あふれる駒沢オリンピック公園を日常に。
都心直結の利便性と、閑静な住宅街の静けさを併せ持つ世田谷・深沢一丁目の新築邸宅。
広々21帖超のLDK、開放的な吹抜け、快適な水回り設備が叶える上質な暮らし。
公園まで徒歩圏内、自然と都市の調和を享受できる特別な住まいです。
【物件概要】新築戸建
名称:深沢1のいえ/The Fukasawa House
物件概要
- 所在地:東京都世田谷区深沢一丁目-25-(18)
- 価格:147800000
- 土地面積:99.00㎡(約29.94坪)
- 建物面積:延床 115.00㎡(約34.78坪)
- 間取り:1LDK+2S(サービスルーム)+カースペース1台分
- 築年:2026年2月完成予定
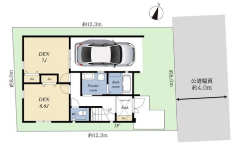
間取り・設備
- 1階:洋室 6.0帖、洋室 5.0帖、納戸、浴室、洗面、トイレ
- 2階:LDK 21.8帖(床暖房)、洋室 5.4帖、トイレ、バルコニー
- RF:小屋裏収納 5.1帖
- 駐車場:1台分
おすすめ設備
- LDK21.8帖・二面採光
- 浴室サイズ1618(窓付き)
- 上部小屋裏収納
- タンクレストイレ(TOTO製)
- パナソニック製 洗面化粧台
- ウォークインクローゼット
アクセス
- 東急東横線「都立大学」駅 徒歩18分
- 東急東横線・大井町線「自由が丘」駅 徒歩19分
- 東急大井町線「九品仏」駅 徒歩19分
- 東急田園都市線「二子玉川」駅 バス17分、「産能大前」バス停 徒歩9分
周辺環境
- ファミリーマート深沢二丁目店:約260m
- 区立深沢小学校:約700m
- 区立八幡中学校:約1100m
- 世田谷深沢郵便局:約110m
- 東京医療センター:約1000m
- 駒沢オリンピック公園:約1300m
- Jom’s 保育園:約190m
仕様・構造
- 木造/未入居新築戸建
- 耐震等級3、制震装置4か所設置
- 省エネ基準適合住宅
- 複層Low-Eガラス、システムキッチン(食洗器付き)、浴室乾燥機、床暖房、エコジョーズ


